
世邦工業“實干、創新、環保、低能耗”的設備制造理念,依托近三十年的制粉行業經驗,致力于火電企業及火電合作企業的脫硫劑項目一體化解決方案,并提供專業的產品以及全方位服務。從前期的原料化驗分析,中期方案設計及設備選型,到后期的安裝調試、驗收投產,世邦工業以其專業的售前、售中、售后等技術和商務團隊為客戶提供一站式項目服務。目前,世邦工業已為國電、華電、中電投、華能、華潤、北方聯合電力等大型電廠設計建立了數十條先進的脫硫工藝生產線,覆蓋了華東、華北、西北等眾多電廠。
電廠燃煤脫硫的方法根據脫硫過程產生時段的先后,可分為燃燒前、燃燒中和燃燒后三大類。燃燒前稱為煤炭脫硫主要有洗選煤、化學脫硫和煤炭轉化等;燃燒中稱為爐內脫硫主要有循環流化床和爐內伴燒脫硫等;燃燒后脫硫也稱煙氣脫硫,根據脫硫介質的溫度又可再分為濕法、干法和半干法。目前火電廠采用的主流脫硫方法為煙氣脫硫。
電廠煙氣脫硫治理分干法和濕法2種。目前世界上使用范圍較廣的脫硫方法是濕法脫硫,約占脫硫總量的80%以上。常用的濕法脫硫方法,根據其所選用的吸收劑不同,又可分為石灰石-石膏法、鈉堿法、雙堿法、氧化鎂法、氨法等等。在濕法脫硫中,石灰石-石膏法因其原料來源廣且成本低,技術成熟且經濟性高,應用較為廣泛,鎂基脫硫(氧化鎂法)脫硫效率高、投入成本低技術成熟在山東、遼寧、河北等礦產資源豐富的地方得到青睞。
注:CaO含量在50%以上,存在地區差異。
立磨工藝流程示意圖
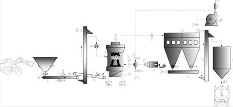
歐版磨工藝流程示意圖


原料檢測
項目跟進
世邦工業與沈陽東北大學冶金技術研究所公司上海分公司實現戰略合作,擁有獨立的原料檢測實驗室,能幫助客戶完成脫硫石灰石原料礦物的品位化驗,以確定合適的研磨方案;并能化驗成品粉體的細度與粒度分布、反應活性從而確定脫硫效率,為客戶提供改善石灰石粉品質及產量的技術支持。世邦工業專業的商務團隊會協助跟進項目的申報等工作,保障客戶的項目有序推進。


現場勘探
工藝設計
世邦工業擁有專業的技術服務團隊,其中理想工程師32人,工程師60人,理想技師125人,專業售前技術團隊,依托客戶需求,利用專業化工具進行現場實地規劃,為客戶提供詳細的項目設計方案,提供合適的設備選型方案、設備清單及項目造價、設計現場基礎圖紙,并能根據客戶的特殊要求設計特殊的工藝和流程。團隊專業技術涵蓋石灰石制粉的整個工藝鏈。



世邦工業科技集團股份有限公司總部位于國際金融中心,中國上海。近30年的機械研發與生產經驗、60萬平方米的生產基地、專業的技術與服務團隊為世邦工業集團打造百年基業提供了不竭動力。以質量為核心,世邦工業建立了一套完備的生產質量管理體系:針對原材料、下料、焊接、噴砂、組裝、試機、涂裝等工序實施全面質量監控,對每一個工藝都做到精益求精;
編制原材料、主要部件、配件的檢驗項目及檢驗方法,按照國標或行標進行檢驗;重要部件均送至專業檢測研究所進行化學成分分析、金相分析;
世邦工業擁有近三十年的行業經驗,可提供多種個性化配置需求:
適用不同物料硬度的耐磨部件(輥、環、管道等)
適用于不同場合的風機(普通風機、高壓風機等)
適用于不同成品細度要求的選粉系統(粗粉選粉機、葉片式選粉機、籠式選粉機等)
適用于不同產能需求的設備型號(全系列歐版磨粉機、立磨磨粉機等)
適用于不同場地需求的物料運輸方式(皮帶機、提升機、氣力輸送等)
電廠脫硫劑制粉設備一般選用MTW歐式梯形磨粉機或者LM立式磨粉機。


安裝調試
培訓指導
世邦工業擁有專業的設備安裝團隊,從場地規劃方案開挖基礎到設備主機、輔機的安裝,全部由世邦工業技術人員組成的團隊完成。整個安裝調試過程流程化、制度化、專業化,完全按照客戶場地實際情況進行布置,針對性強,為客戶節省大量的時間。并且在此期間對現場工人進行技術指導和培訓。


項目驗收
服務不止
新項目完工后,由設備管理部門,會同購置單位,使用單位(或接收單位)進行驗收,全面檢查、測試設備功能、質量是否與合同描述一致,并填寫項目驗收單,存入項目檔案,對客戶在驗收過程中提出的問題及時解決。此后由世邦工業專業的用戶保障中心提供專業及時的配件供應、設備維修、設備升級、電話回訪、現場回訪等服務。讓每一個已成交客戶成為我們的忠實粉絲