歡迎來到上海世邦機器有限公司官方網站!詳情請致電400-696-1899 021-58386699 !
山西晉煤集團作為國有大型企業,此次購買上海世邦錨固劑自動化生產線成套設備既是對世邦品牌影響力的認可,也是對世邦SCM1250超細微粉磨等相關配套設備高性能的信任,此次合作促進了雙方的互利互贏。
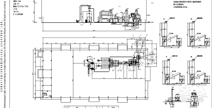
晉煤集團超快硬錨桿錨固劑生產線全套設備,由上海世邦設計提供。此次為晉煤集團設計的新型全套錨固劑生產工藝能夠在生產過程中實現集中控制、自動生產、故障自動排除等工藝,具有操控簡單、易學易用等優點。
原料:硫鋁酸鹽水泥熟料、硅酸鹽水泥、偏高嶺土、石灰、石膏等等
進料粒度:<1mm
含水量<5%
產品用途:注漿及填充材料
| 原料材質 | 成品要求 | 主要性能 | 凝結時間 (min) | 抗壓強度 (MPa) | 膨脹率 (%) | 錨固力 (KN) |
|---|---|---|---|---|---|---|
| 水泥 | 細度1250目 通篩率90% |
滿足 MT219-2002 實測結果 |
初凝 3~4min |
0.5h >12~ 16 MPa |
0.5h≥ 0.1~0.18 | 0.5h ≥ 50~62 |
| 石灰 | ||||||
| 終凝 <7. 5min |
1h >18~ 24 MPa |
|||||
| 石膏 | ||||||
1、不經研磨:錨固劑原料經稱重系統稱重配料后,進入無重力攪拌系統進行攪拌,然后通過氣力輸送系統送至成品大罐進行儲存,最終袋裝運輸。
2、磨機研磨: 所需原料經給料設備進入稱重系統進行稱重配料,然后進入無重力攪拌系統進行攪拌混合,混合料進入研磨系統進行研磨分級,最終經氣力輸送系統送至成品大罐進行儲存,根據需求進行袋裝處理。
兩套生產工藝流程,共用一套生產線,系統集成度高,占地面積小,解決設備總投資。
此次上海世邦為晉煤集團配備的錨固劑生產線設備在公司經典標配基礎上根據客戶需求進行改進,SCM1250超細微粉磨作為主要設備,螺旋輸送機、粉體包裝機、氣力輸送機等等作為輔助設備,完美完成了錨固劑兩套生產工藝流程的要求。
| 序號 | 名稱 | 型號 | 數量 |
|---|---|---|---|
| 1 | 螺旋輸送機 | LS315 | 2 |
| 2 | 計量秤 | JLC | 1 |
| 3 | 螺旋輸送機 | LSY250 | 4 |
| 4 | 原料倉 | 60m3 | 4 |
| 5 | 成品倉 | 2 | |
| 6 | 粉體包裝機 | 袋裝 | 1 |
| 7 | 氣力輸送機 | QL | 1 |
| 8 | 超細微粉磨 | SCM1250 | 1 |
| 9 | 螺旋輸送機 | LS219 | 1 |
| 10 | 緩沖料倉 | SCM1250-1 | 1 |
| 11 | 斗式提升機 | TH300 | 2 |
| 12 | 混料系統 | WZ-6C | 1 |
| 13 | 螺旋輸送機 | LS160 | 1 |
| 序號 | 名稱 | 型號 | 數量 |
|---|---|---|---|
| 1 | 主機電機 | Y355M2-6 | 1 |
| 2 | 分析機 | Y225S-4 | 1 |
| 3 | 提升機 | TH-300 | 1 |
| 4 | 提升機電機 | Y100M-4 | 1 |
| 5 | 給料機 | 裙邊皮帶機 | 1 |
| 6 | 料倉(筒倉) | 10m3 | 1 |
| 7 | 出料螺旋輸送機 | LS219 | 2 |
| 8 | 卸料閥 | ZJD-250 | 3 |
| 9 | 鼓風機電機 | Y250M-2 | 1 |
| 10 | 錘式破碎機 | PC600×800 | 1 |
| 11 | 錘破電機 | YB2-280S-6 | 1 |
| 12 | 除塵器 | LDMC250 | 1 |
| 13 | 空壓機 | LG6.2/8 | 1 |
| 14 | 超細磨 | SCM1250 | 1 |
采用PLC集中控制、觸摸屏可視化操作,系統自動化程度高,方案配置合理。
原料給料系統:將錨固劑生產線原料水泥、石灰、石膏等配合料經各自原料倉儲存,經給料設備送入稱重系統。
稱重系統:不同原料按照設定的配比進行稱重配料。
攪拌系統:配料完成后進入無重力攪拌機進行攪拌混合。
研磨系統:攪拌好的配料經螺旋給料機喂入超細微粉磨進行研磨分級,該階段為關鍵流程,使用主力設備為SCM1250超細微粉磨,將配料粉磨至所需粒度1250目。
輸送、儲存、包裝系統:研磨后的成品經脈沖除塵器收集,由氣力輸送系統送至成品料罐,末了經包裝系統包裝封袋進行運輸。
利用專業化工具進行現場實地規劃,為晉煤集團提供詳細的錨固劑設計方案,提供理想的設備選型方案、設備清單及項目造價、設計現場基礎圖紙,并能根據客戶的特殊要求設計特殊的工藝和流程。
為滿足錨固劑生產線高效率、低污染、低勞動強度的要求,上海世邦此次為晉煤集團提供的整套錨固劑生產線PLC集中控制,自動化程度高。
上海世邦專業的設備安裝團隊,從場地規劃到主輔機的安裝調試流程化、制度化、專業化,完全按照客戶場地實際情況進行布置,針對性強,為客戶節省大量的時間;并且在此期間對現場工人進行技術指導和培訓。
該項目完工后,由設備管理部門,會同晉煤集團進行驗收,全面檢查、測試設備功能、質量是否與合同描述一致,并填寫項目驗收單,存入項目檔案,對客戶在驗收過程中提出的問題及時解決。此后由上海世邦用戶保障中心進行配件供應、設備維修、設備升級、電話回訪、現場回訪等服務,得到了晉煤集團的贊譽。
此次晉煤集團錨固劑生產線主力設備為上海世邦SCM1250 超細微粉磨,該設備是上海世邦根據多年的磨機生產經驗,吸收國內外磨機生產廠家的優點,經過多次充分考察、研究、試驗而開發出的高效低成本的新型超細粉加工設備。
新型設計的磨輥磨環研磨曲線,更加提升研磨效率。在成品細度和功率相同的情況下,產能較氣流磨、攪拌磨高出40%,比球磨機的產量則高出一倍以上。而系統的能耗僅為氣流磨的30%。
單頭選粉機和多頭選粉機可選,其多頭選粉機的每個轉子都可調速出磨成品細度在選定范圍內均可實現,可不用經過二次風選分級,無下品料的存在。成品粒度小于2μm顆粒含量高,理想可可達70%,及325目低殘留,也適合從中二次分選出更細粒徑的成品。
脈沖除塵器、消音器、隔音房的使用,除塵、降噪,完全滿足國標要求。
磨輥、磨環采用特殊材料鍛制而成,從而使利用程度大大提高。在物料及成品細度相同的情況下,比沖擊式破碎機和渦輪粉碎機的易損件使用壽命長2-3倍,加工碳酸鈣、方解石時,使用壽命可達2-5年。
上海世邦的工程師們經過實地考察,給我們設計出了完美的錨固劑生產線方案,以SCM1250作為主要設備,攪拌機、氣力輸送機、提升機、給料機等作為輔助設備。開工到現運轉良好,高效率、高產量、高質量和高穩定性,都是我們集團所需要的,上海世邦的產品確實名不虛傳。







錨桿支護作為一種新型煤礦巷道支護方式,在現在的大型礦井生產中有著廣泛的應用,錨桿支護系統在各礦的推廣使用覆蓋率達到85%以上,并且凸顯超強的生命力和優勢,成為當今世界巷道支護技術的主要發展趨勢,錨固劑作為錨桿支護的主要組成部分,用量也在快速增加,例如水泥錨固劑和樹脂錨固劑。


水泥錨固劑實際上是一種快硬水泥,其生產方式有兩種,一種是高標號普通硅酸鹽水泥按不同比例摻加速凝劑、早強劑 、膨脹劑配制而成;另一種是將原料經過配料粉磨成生料后,放在水泥窯中煅燒成熟料,再粉磨成細粉加工而成。質量指標執行MT210-2002的要求。此次晉煤集團超快硬錨桿錨固劑則為經特殊加工浸水式水泥錨固劑。
采用高強度錨固劑專用不飽和聚酯樹脂與大理石粉、促進劑和輔料,按一定比例配制而成的膠泥狀粘接材料,用專用聚酯薄膜將膠泥與固化劑分割呈雙組分包裝藥卷狀。
作為煤礦巖巷、煤巷、隧道涵洞金屬礦場、路基護坡等地下工程的錨桿支護材料。